
DOM do Twojej Indywidualnej Kreacji! - REZERWACJA!
370 000,00 zł
Opis
Zapraszam do zapoznania się z ofertą domu do zaaranżowania wg własnego pomysłu, znajdującego się w miejscowości Wólka Siemieńska w powiecie parczewskim.
Nieruchomość składa się z:
Dom w stanie surowym otwartym
* Powierzchnia 123,53m2, idealna przestrzeń do odpowiedniego zagospodarowania.
* Parter
-Salon z Aneksem
-Duży pokój/sypialnia
-Spiżarnia
-Kotłownia z dodatkowym wejściem
-WC
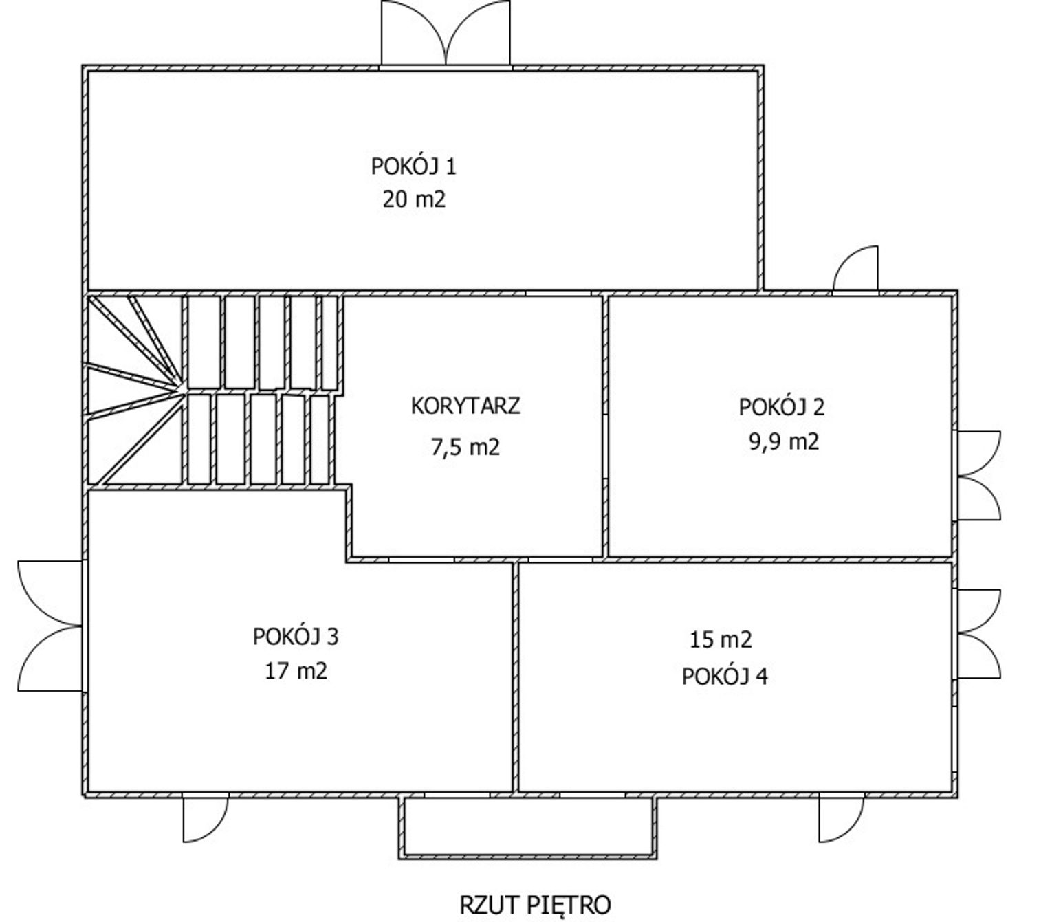
* 1 Piętro
-3 przestronne pokoje
-Toaleta
* Dach pokryty Dachówką
* Zamontowane okna dachowe
* Dom zbudowano w 2023 r.
Duża Działka - 2600m2
-Częściowo ogrodzona siatką, frontalna część posesji zostaje do aranżacji nowego właściciela
-Dojazd - droga asfaltowa
-Media:
Prąd
Woda
Szambo
Możliwość doprowadzenia światłowodu
Dom położony na działce nr 349/6
MPZP: tereny zabudowy zagrodowej
wymiary działki: 134m x 19,5m
* Dom zlokalizowane w cichej i spokojniej okolicy nieopodal jezior, lasów.
Cisza i codzienny śpiew ptaków to zapewne główne z atutów tej nieruchomości.
Do Parczewa 13min
Do Radzynia Podlaskiego 21min
Do Lublina 55 min
Do Białej Podlaskiej 60 min
Pomagamy w formalnościach związanych z uzyskaniem kredytu na zakup nieruchomości.
Nasz doradca kredytowy bezpłatnie pomoże Ci sprawdzić zdolność kredytową i przedstawi najkorzystniejszą ofertę z ponad 10 banków!
Posiadasz podobną nieruchomość? Zadzwoń i skorzystaj z bezpłatnej konsultacji, gdzie odpowiem na pytania dotyczące Twojej nieruchomości, jej ceny oraz procesu sprzedaży.
Nie zwlekaj, zadzwoń już teraz!
Edyta Bancerz
Doradca ds. nieruchomości
tel. 885 851 158
e-mail: [email protected]
Północ Nieruchomości oddział Biała Podlaska
Nieruchomość składa się z:
Dom w stanie surowym otwartym
* Powierzchnia 123,53m2, idealna przestrzeń do odpowiedniego zagospodarowania.
* Parter
-Salon z Aneksem
-Duży pokój/sypialnia
-Spiżarnia
-Kotłownia z dodatkowym wejściem
-WC
* 1 Piętro
-3 przestronne pokoje
-Toaleta
* Dach pokryty Dachówką
* Zamontowane okna dachowe
* Dom zbudowano w 2023 r.
Duża Działka - 2600m2
-Częściowo ogrodzona siatką, frontalna część posesji zostaje do aranżacji nowego właściciela
-Dojazd - droga asfaltowa
-Media:
Prąd
Woda
Szambo
Możliwość doprowadzenia światłowodu
Dom położony na działce nr 349/6
MPZP: tereny zabudowy zagrodowej
wymiary działki: 134m x 19,5m
* Dom zlokalizowane w cichej i spokojniej okolicy nieopodal jezior, lasów.
Cisza i codzienny śpiew ptaków to zapewne główne z atutów tej nieruchomości.
Do Parczewa 13min
Do Radzynia Podlaskiego 21min
Do Lublina 55 min
Do Białej Podlaskiej 60 min
Pomagamy w formalnościach związanych z uzyskaniem kredytu na zakup nieruchomości.
Nasz doradca kredytowy bezpłatnie pomoże Ci sprawdzić zdolność kredytową i przedstawi najkorzystniejszą ofertę z ponad 10 banków!
Posiadasz podobną nieruchomość? Zadzwoń i skorzystaj z bezpłatnej konsultacji, gdzie odpowiem na pytania dotyczące Twojej nieruchomości, jej ceny oraz procesu sprzedaży.
Nie zwlekaj, zadzwoń już teraz!
Edyta Bancerz
Doradca ds. nieruchomości
tel. 885 851 158
e-mail: [email protected]
Północ Nieruchomości oddział Biała Podlaska
Kategoria
Reklama















