
Dom w Malowniczej Okolicy Jezior!
210 000,00 zł
Opis
Marzysz o własnym domu z dala od miejskiego zgiełku, otoczonym naturą? Ta oferta jest właśnie dla Ciebie!
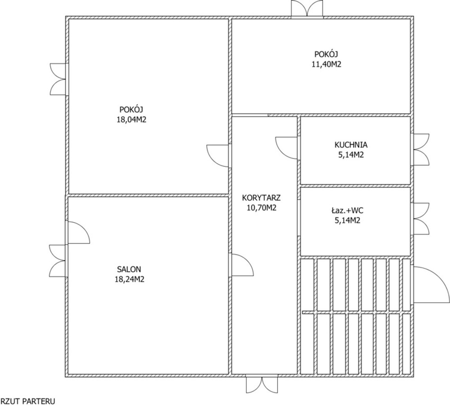
Oferuję na sprzedaż dom o powierzchni użytkowej 72,03m² położony na działce o powierzchni 900m² w Orzechowie Starym, gmina Sosnowica, powiat parczewski, województwo lubelskie.
Nieruchomość znajduje się w wyjątkowo atrakcyjnej lokalizacji, w otoczeniu lasów oraz jezior Tomaszne i Skomielno, blisko Rezerwatu Przyrody Torfowisko przy Jeziorze Czarnym, Zagłębocze i Krasnym.
Atuty nieruchomości:
* Lokalizacja: Nieruchomość położona 23,9km od Parczewa, 34,5km od Lubartowa, 44,1km od Włodawy i 48km od Jeziora Białego w Okunince oraz 48,7km od Lublina.
* Idealne miejsce dla osób ceniących sobie wypoczynek na łonie natury.
* Działka: Przestronna o regularnym kształcie, dająca wiele możliwości zagospodarowania.
* Potencjał: Dom wymaga wykończenia, co daje nowemu właścicielowi możliwość adaptacji wnętrz według własnych potrzeb.
* Otoczenie tworzą jeziora, lasy, rezerwat przyrody – to wszystko w zasięgu ręki.
* dom posiada podpiwniczenie oraz poddasze użytkowe
Parametry nieruchomości:
- Powierzchnia działki: 900m²
- Powierzchnia użytkowa domu: 72,03m²
- Liczba pokoi: 3 (salon z balkonem i 2 pokoje), oddzielna kuchnia i łazienka
- Materiał domu: cegła
- Dach: eternit
- Media: woda, prąd, szambo - do wykonania
- Dodatkowa przestrzeń: podpiwniczenie pod częścią budynku, poddasze użytkowe.
- Nieruchomość z bezpośrednim dostępem do drogi asfaltowej
To doskonała oferta dla osób szukających nieruchomości z dużym potencjałem, w spokojnej i malowniczej okolicy.
Nie czekaj, umów się na prezentację bo dobre inwestycje, w dobrych lokalizacjach sprzedają się szybko.
Pomagamy w formalnościach związanych z uzyskaniem kredytu na zakup nieruchomości.
Nasz doradca kredytowy bezpłatnie pomoże Ci sprawdzić zdolność kredytową i przedstawi najkorzystniejszą ofertę z ponad 10 banków!
Posiadasz podobną nieruchomość? Zadzwoń i skorzystaj z bezpłatnej konsultacji, gdzie odpowiem na pytania dotyczące Twojej nieruchomości, jej ceny oraz procesu sprzedaży.
Nie zwlekaj, zadzwoń już teraz!
Edyta Bancerz
Doradca ds. nieruchomości
tel. 885 851 158
e-mail: [email protected]
Północ Nieruchomości oddział Biała Podlaska
Niniejsze ogłoszenie nie stanowi oferty w rozumieniu Kodeksu Cywilnego, lecz ma charakter informacyjny.
Przedstawione wizualizacje i grafiki mają charakter wyłącznie poglądowy i stanowią wyłącznie materiał pomocniczy, ułatwiający zorientowanie się w ogólnym wyglądzie oferowanej nieruchomości.
Niniejsze ogłoszenie wraz z jego elementami jest własnością Północ Nieruchomości Sp z o.o. lub podmiotu współpracującego. Wszelkie prawa zastrzeżone. Kopiowanie, rozpowszechnianie oraz korzystanie z niniejszych materiałów w jakikolwiek inny sposób wykraczający poza dozwolony użytek określony przepisami ustawy z 4 lutego 1994 r. o prawie autorskim i prawach pokrewnych (Dz. U. 1994, nr 24 poz. 83 z późn. zm.) bez pisemnej zgody Północ Nieruchomości Sp z o.o. lub podmiotów współpracujących jest zabronione i może stanowić podstawę odpowiedzialności cywilnej oraz karnej.
Niniejsze materiały stanowią tajemnicę przedsiębiorstwa PÓŁNOC NIERUCHOMOŚCI Sp. z o.o. w rozumieniu ustawy z dnia 16 kwietnia 1993 r. o zwalczaniu nieuczciwej konkurencji (Dz. U. z 2003 r., Nr 153, poz. 1503 z późn. zm.).

















