
5-pokojowy dom do wyposażenia w Borkach!
480 000,00 zł
Opis
W Borkach, w pow. radzyńskim, woj. Lubelskim znajduje się nieruchomość warta Twojej uwagi!
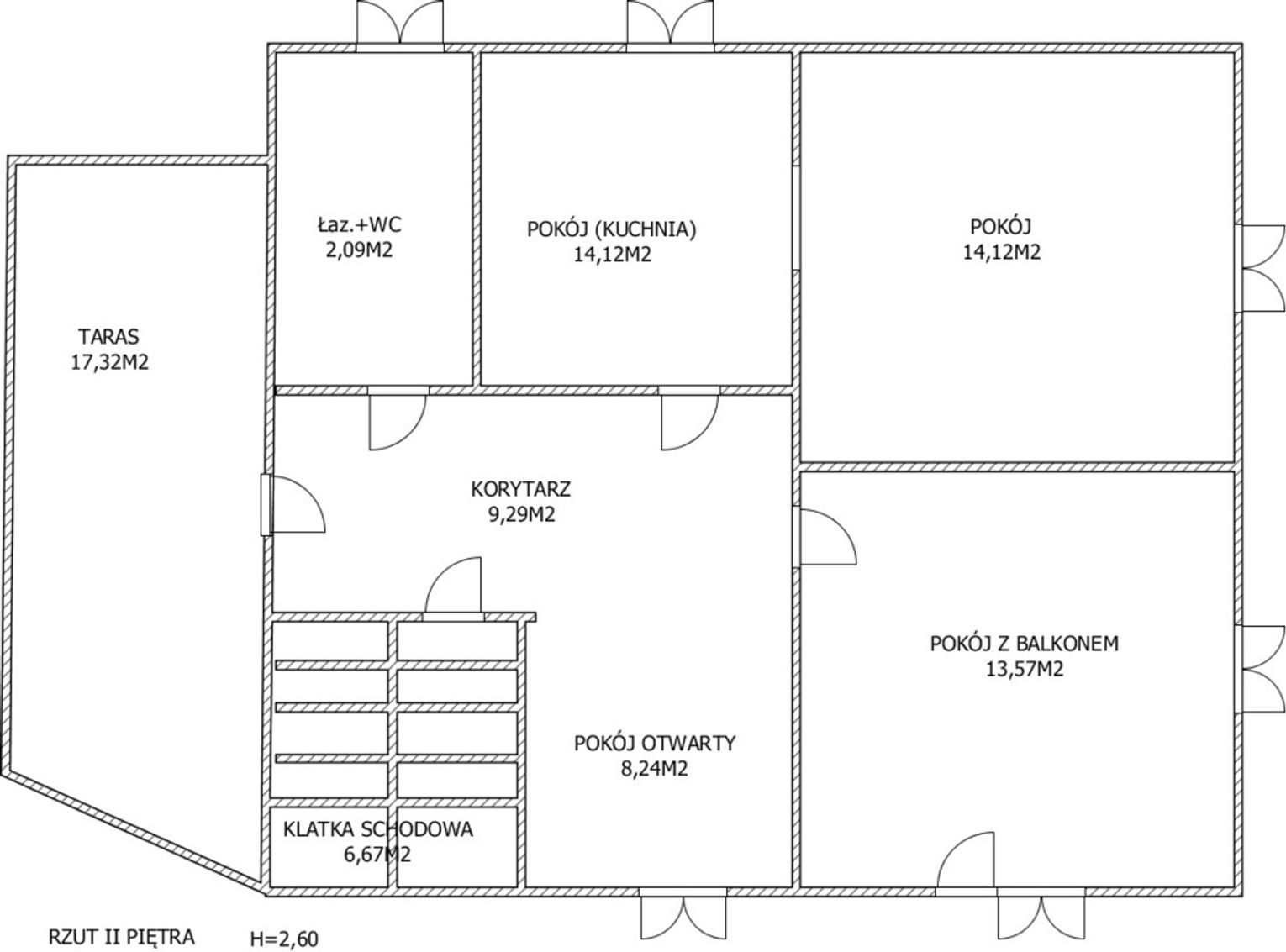
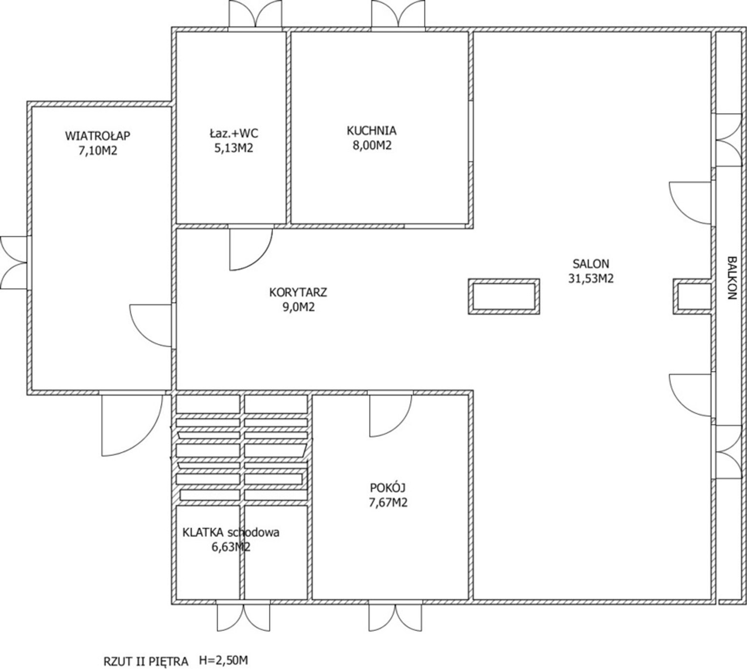
Ten przestronny, 4-kondygnacyjny budynek o ogromnym potencjałem jest idealną opcją dla osób, które chcą stworzyć swoje wymarzone miejsce od podstaw!
Specyfikacja nieruchomości:
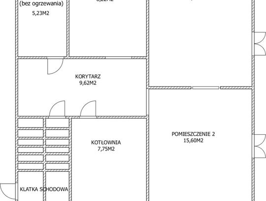
- Powierzchnia całkowita: 230m2
- działka z domem nr 97/3 o pow. 800m2
Przestrzeń dla dużej rodziny:
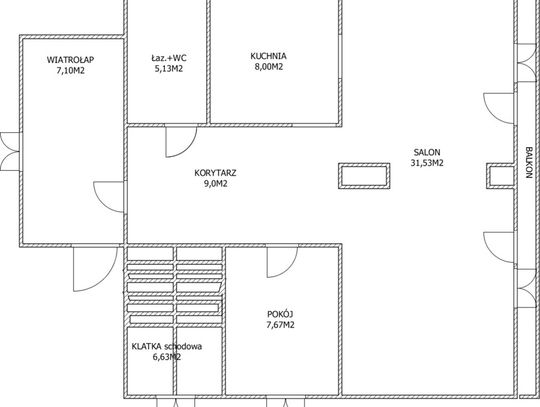
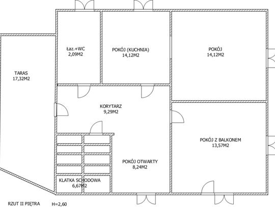
– 5 pokoi,
- 2 łazienki z WC,
- duży salon
- otwarta kuchnia
- Piwnica, w której rozkład i wykończenie pozwalają na prowadzenie np. działalności gospodarczej
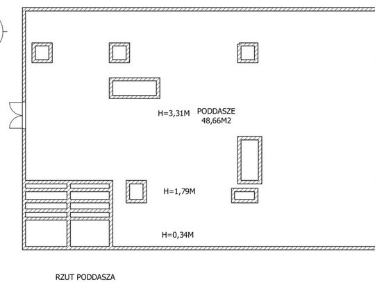
- Poddasze z możliwością zaaranżowania
Dodatkowo:
- Możliwość montażu kominka w salonie
- Taras
- Garaż/parking na terenie posesji
- Ogrzewanie węgiel/drzewo oraz ekogroszek
- Możliwość urządzenia kuchni na piętrze. Dodatkowa kuchnia w piwnicy.
Zgodnie z MPZP działka 99/2 posiada nieprzekraczalną linię zabudowy w odległości 4m od krawędzi planowanej drogi. Działka 99/8 zawiera się w pasie planowanej drogi.
Lokalizacja:
Nieruchomość znajduje się w małej miejscowości, z doskonałym dostępem do lokalnych usług, szkoły, sklepów, urzędów, parku.
- Cicha i spokojna okolica z szybkim dojazdem do centrum miasta Radzynia Podlaskiego (11km) i do Lublina (61km)
- Szybki dostęp do drogi krajowej nr 19 łączącej Radzyń z Lublinem - 1km
- Okolica zachęcająca do spacerów i rekreacji – park, rzeka Bystrzyca, Pałac Jaźwińskich
Cena działki z domem: 480 000zł
Możliwość zakupu dodatkowej działki niezabudowanej składającej się z 2 nr działek: 99/2 i 99/8 o łącznej pow. 715m2 w kwocie 70 000zł
Zadzwoń i umów się na prezentację – pokażę Ci potencjał tej nieruchomości!
Pomagamy w formalnościach związanych z uzyskaniem kredytu na zakup nieruchomości.
Nasz doradca kredytowy bezpłatnie pomoże Ci sprawdzić zdolność kredytową i przedstawi najkorzystniejszą ofertę z ponad 10 banków!
Posiadasz podobną nieruchomość? Zadzwoń i skorzystaj z bezpłatnej konsultacji, gdzie odpowiem na pytania dotyczące Twojej nieruchomości, jej ceny oraz procesu sprzedaży.
Nie zwlekaj, zadzwoń już teraz!
Edyta Bancerz
Doradca ds. nieruchomości
tel. 885 851 158
e-mail: [email protected]
Północ Nieruchomości oddział Biała Podlaska
Ten przestronny, 4-kondygnacyjny budynek o ogromnym potencjałem jest idealną opcją dla osób, które chcą stworzyć swoje wymarzone miejsce od podstaw!
Specyfikacja nieruchomości:
- Powierzchnia całkowita: 230m2
- działka z domem nr 97/3 o pow. 800m2
Przestrzeń dla dużej rodziny:
– 5 pokoi,
- 2 łazienki z WC,
- duży salon
- otwarta kuchnia
- Piwnica, w której rozkład i wykończenie pozwalają na prowadzenie np. działalności gospodarczej
- Poddasze z możliwością zaaranżowania
Dodatkowo:
- Możliwość montażu kominka w salonie
- Taras
- Garaż/parking na terenie posesji
- Ogrzewanie węgiel/drzewo oraz ekogroszek
- Możliwość urządzenia kuchni na piętrze. Dodatkowa kuchnia w piwnicy.
Zgodnie z MPZP działka 99/2 posiada nieprzekraczalną linię zabudowy w odległości 4m od krawędzi planowanej drogi. Działka 99/8 zawiera się w pasie planowanej drogi.
Lokalizacja:
Nieruchomość znajduje się w małej miejscowości, z doskonałym dostępem do lokalnych usług, szkoły, sklepów, urzędów, parku.
- Cicha i spokojna okolica z szybkim dojazdem do centrum miasta Radzynia Podlaskiego (11km) i do Lublina (61km)
- Szybki dostęp do drogi krajowej nr 19 łączącej Radzyń z Lublinem - 1km
- Okolica zachęcająca do spacerów i rekreacji – park, rzeka Bystrzyca, Pałac Jaźwińskich
Cena działki z domem: 480 000zł
Możliwość zakupu dodatkowej działki niezabudowanej składającej się z 2 nr działek: 99/2 i 99/8 o łącznej pow. 715m2 w kwocie 70 000zł
Zadzwoń i umów się na prezentację – pokażę Ci potencjał tej nieruchomości!
Pomagamy w formalnościach związanych z uzyskaniem kredytu na zakup nieruchomości.
Nasz doradca kredytowy bezpłatnie pomoże Ci sprawdzić zdolność kredytową i przedstawi najkorzystniejszą ofertę z ponad 10 banków!
Posiadasz podobną nieruchomość? Zadzwoń i skorzystaj z bezpłatnej konsultacji, gdzie odpowiem na pytania dotyczące Twojej nieruchomości, jej ceny oraz procesu sprzedaży.
Nie zwlekaj, zadzwoń już teraz!
Edyta Bancerz
Doradca ds. nieruchomości
tel. 885 851 158
e-mail: [email protected]
Północ Nieruchomości oddział Biała Podlaska
Kategoria
Reklama


































