
Gotowy biznes - segment w centrum Łukowa!
1 950 000,00 zł
Opis
Na sprzedaż segment mieszkalno-usługowy o powierzchni użytkowej 422,50m2 z dużym potencjałem zarówno do zamieszkania, jak i prowadzenia działalności gospodarczej.
4 lokale są już wynajęte – zyskujesz gotowych najemców!
-> Zakup inwestycji z gotowymi najemcami to doskonała opcja dla inwestorów, którzy chcą czerpać zyski od razu po nabyciu nieruchomości.
-> Dzięki temu unikamy ryzyka związanego z poszukiwaniem najemców oraz czasem oczekiwania na pierwszy przychód.
-> Gotowi najemcy oznaczają, że inwestycja generuje dochód od momentu zakupu, co przyspiesza zwrot z inwestycji i obniża jej ryzyko.
Segment znajduje się w budynku, w sąsiedztwie innych lokali usługowych oraz osiedli mieszkaniowych, co gwarantuje stały przepływ Klientów i doskonałą ekspozycję.
Lokalizacja:
· Centrum, ulica Staropijarska 2a w Łukowie, powiat łukowski, województwo lubelskie.
· Budynek na działce nr 8523/4 o pow. 190m2.
· Dostęp do budynku z 2 stron:
- od strony ul. Staropijarskiej – dla Klientów
- od strony ul. Międzyrzeckiej – dla właścicieli – działka nr 8523/3 o pow. 216m2 - dzierżawiona od Urzędu Miasta, działka nr 8517/5 o pow. 36m2 – własność właściciela. Wjazd ogrodzony.
Charakterystyka segmentu:
Układ: parter usługowy, piętro mieszkalno-usługowe, poddasze do zaaranżowania
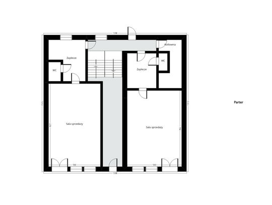
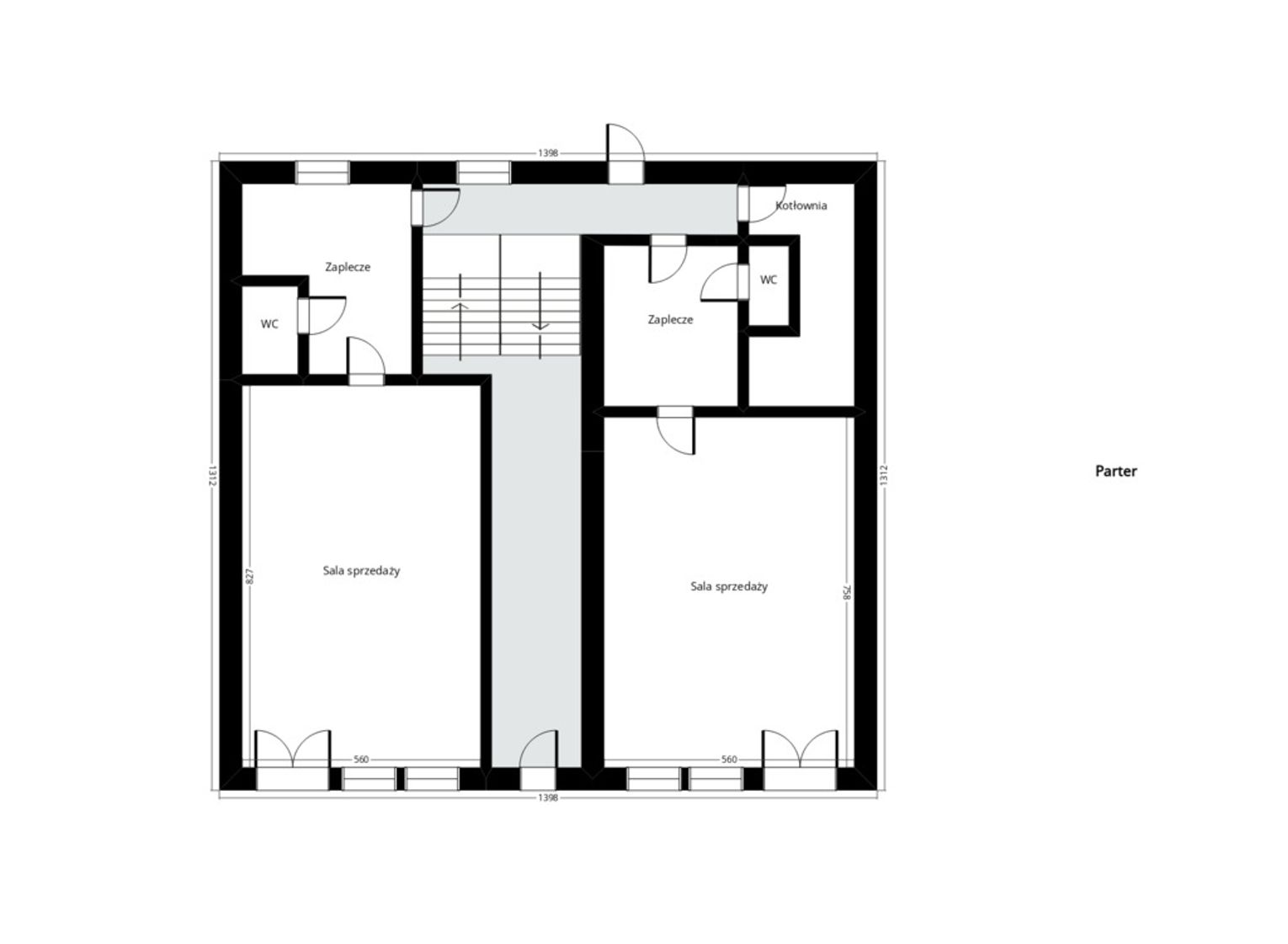
* PARTER 148,50m2: 2 sklepy z oddzielnymi zapleczami i toaletami, kotłownia. Parter posiada dodatkowe wyjście z drugiej strony budynku.
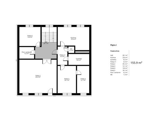
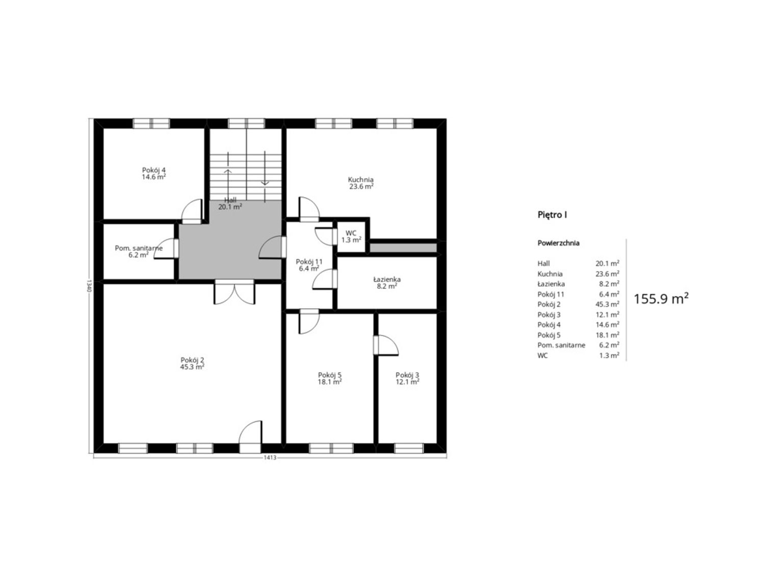
* PIĘTRO 155,9m2: (część usługowa) 2 lokale usługowe – Ubezpieczenia i Kancelaria Adwokacka oraz (część mieszkalna): kuchnia, 2 pokoje – przechodni salon i sypialnia, łazienka, WC, korytarz.
* PODDASZE 120,0m2: otwarta przestrzeń w stanie surowym zamkniętym. Część bez odbioru technicznego.
Media: wszystkie przyłącza (woda, prąd (+siła), gaz, światłowód, kanalizacja),
Parking: miejsca parkingowe dla klientów i lokatorów
Zalety nieruchomości:
- Dwufunkcyjność: idealne rozwiązanie dla przedsiębiorców, którzy chcą połączyć miejsce pracy z komfortem mieszkania
- Lokalizacja: bliskość głównych ulic handlowych i lokali usługowych oraz transportu publicznego zwiększa atrakcyjność segmentu
- Gotowe do zamieszkania lub prowadzenia działalności: pełne wyposażenie, , klimatyzacja w sklepach na parterze i w jednym biurze na piętrze
Dodatkowe informacje:
- rok budowy: 1995r. Nadbudowane I piętro I poddasze w latach 1995-96.
- 3 kondygnacje, 5 pokoi
- ogrzewanie gazowe+elektryczne
- ogrzewanie podłogowe w łazience i części kuchni
- Podgrzewanie wody gazowe
- Dach blachodachówka – remont 2 lata temu
Zapraszamy do kontaktu w celu umówienia się na prezentację oraz uzyskania szczegółowych informacji.
Pomagamy w formalnościach związanych z uzyskaniem kredytu na zakup nieruchomości.
Nasz doradca kredytowy bezpłatnie pomoże Ci sprawdzić zdolność kredytową i przedstawi najkorzystniejszą ofertę z ponad 10 banków!
Posiadasz podobną nieruchomość? Zadzwoń i skorzystaj z bezpłatnej konsultacji, gdzie odpowiem na pytania dotyczące Twojej nieruchomości, jej ceny oraz procesu sprzedaży.
Nie zwlekaj, zadzwoń już teraz!
Edyta Bancerz
Doradca ds. nieruchomości
tel. 885 851 158
e-mail: [email protected]
Północ Nieruchomości oddział Biała Podlaska
4 lokale są już wynajęte – zyskujesz gotowych najemców!
-> Zakup inwestycji z gotowymi najemcami to doskonała opcja dla inwestorów, którzy chcą czerpać zyski od razu po nabyciu nieruchomości.
-> Dzięki temu unikamy ryzyka związanego z poszukiwaniem najemców oraz czasem oczekiwania na pierwszy przychód.
-> Gotowi najemcy oznaczają, że inwestycja generuje dochód od momentu zakupu, co przyspiesza zwrot z inwestycji i obniża jej ryzyko.
Segment znajduje się w budynku, w sąsiedztwie innych lokali usługowych oraz osiedli mieszkaniowych, co gwarantuje stały przepływ Klientów i doskonałą ekspozycję.
Lokalizacja:
· Centrum, ulica Staropijarska 2a w Łukowie, powiat łukowski, województwo lubelskie.
· Budynek na działce nr 8523/4 o pow. 190m2.
· Dostęp do budynku z 2 stron:
- od strony ul. Staropijarskiej – dla Klientów
- od strony ul. Międzyrzeckiej – dla właścicieli – działka nr 8523/3 o pow. 216m2 - dzierżawiona od Urzędu Miasta, działka nr 8517/5 o pow. 36m2 – własność właściciela. Wjazd ogrodzony.
Charakterystyka segmentu:
Układ: parter usługowy, piętro mieszkalno-usługowe, poddasze do zaaranżowania
* PARTER 148,50m2: 2 sklepy z oddzielnymi zapleczami i toaletami, kotłownia. Parter posiada dodatkowe wyjście z drugiej strony budynku.
* PIĘTRO 155,9m2: (część usługowa) 2 lokale usługowe – Ubezpieczenia i Kancelaria Adwokacka oraz (część mieszkalna): kuchnia, 2 pokoje – przechodni salon i sypialnia, łazienka, WC, korytarz.
* PODDASZE 120,0m2: otwarta przestrzeń w stanie surowym zamkniętym. Część bez odbioru technicznego.
Media: wszystkie przyłącza (woda, prąd (+siła), gaz, światłowód, kanalizacja),
Parking: miejsca parkingowe dla klientów i lokatorów
Zalety nieruchomości:
- Dwufunkcyjność: idealne rozwiązanie dla przedsiębiorców, którzy chcą połączyć miejsce pracy z komfortem mieszkania
- Lokalizacja: bliskość głównych ulic handlowych i lokali usługowych oraz transportu publicznego zwiększa atrakcyjność segmentu
- Gotowe do zamieszkania lub prowadzenia działalności: pełne wyposażenie, , klimatyzacja w sklepach na parterze i w jednym biurze na piętrze
Dodatkowe informacje:
- rok budowy: 1995r. Nadbudowane I piętro I poddasze w latach 1995-96.
- 3 kondygnacje, 5 pokoi
- ogrzewanie gazowe+elektryczne
- ogrzewanie podłogowe w łazience i części kuchni
- Podgrzewanie wody gazowe
- Dach blachodachówka – remont 2 lata temu
Zapraszamy do kontaktu w celu umówienia się na prezentację oraz uzyskania szczegółowych informacji.
Pomagamy w formalnościach związanych z uzyskaniem kredytu na zakup nieruchomości.
Nasz doradca kredytowy bezpłatnie pomoże Ci sprawdzić zdolność kredytową i przedstawi najkorzystniejszą ofertę z ponad 10 banków!
Posiadasz podobną nieruchomość? Zadzwoń i skorzystaj z bezpłatnej konsultacji, gdzie odpowiem na pytania dotyczące Twojej nieruchomości, jej ceny oraz procesu sprzedaży.
Nie zwlekaj, zadzwoń już teraz!
Edyta Bancerz
Doradca ds. nieruchomości
tel. 885 851 158
e-mail: [email protected]
Północ Nieruchomości oddział Biała Podlaska
Kategoria
Reklama




















