
Dom w Milanowie – 104m² z garażem i działką 1230m2
225 000,00 zł
Opis
REZERWACJA!
Szukasz domu z potencjałem, w spokojnej lokalizacji, ale z dobrym dojazdem do miasta?
Mam ciekawą propozycję!
Na sprzedaż dom w stanie deweloperskim o powierzchni użytkowej 104m², położony na działce 1230m², na przedmieściach Milanowa (powiat parczewski).
To wyjątkowa okazja dla osób, które szukają przestrzeni, komfortu i ciszy – bez rezygnacji z wygody dojazdu do miasta.
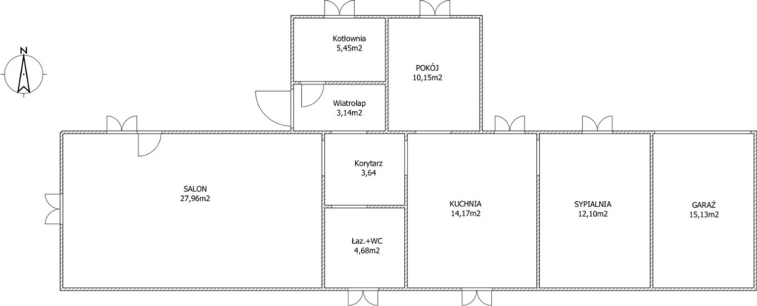
Rozkład pomieszczeń:
– 2 pokoje,
– duży, jasny salon z możliwością aranżacji strefy wypoczynkowej z miejscem na urządzenie tarasu
– przechodnia kuchnia,
– łazienka z WC,
– garaż w bryle budynku
- wiatrołap i przedpokój
- kotłownia
Przekształcony z budynku gospodarczego, starannie rozbudowany i dostosowany do funkcji mieszkalnych, oferuje komfort, przestrzeń i solidne wykonanie. Całość została przygotowana zgodnie z przepisami prawa budowlanego – nowy właściciel może skupić się na aranżacji wnętrz i wykończeniu przestrzeni zgodnie ze swoimi potrzebami.
Parametry nieruchomości:
* Powierzchnia użytkowa: 104m²
* Działka: 1230m²
* Garaż w bryle budynku
* Stan: deweloperski – urządzisz po swojemu!
* ogrzewanie podłogowe na całej powierzchni
Działka 1230 m² daje dużo swobody – miejsce na ogród, strefę relaksu czy ogródek warzywny. Choć działka jest stosunkowo wąska, została zagospodarowana w sposób funkcjonalny i komfortowy.
Lokalizacja:
Nieruchomość położona jest w Kolonii Milanów, w spokojnej i zielonej okolicy. W sąsiedztwie zabudowa jednorodzinna, pola i tereny otwarte. Do do centrum Milanowa i Parczewa – szybki i wygodny dojazd. To idealna propozycja dla osób ceniących ciszę i przestrzeń, a jednocześnie chcących pozostać w zasięgu miasta.
To bardzo konkurencyjna oferta w tej lokalizacji – nowy, rozbudowany dom z dużą działką w cenie mieszkania!
📞 Nie czekaj – zadzwoń i umów się na prezentację!
Bezpłatnie pomagamy w formalnościach związanych z uzyskaniem kredytu na zakup nieruchomości. Nasz doradca kredytowy bezpłatnie sprawdzi Twoją zdolność kredytową i przedstawi najlepsze oferty z ponad 10 banków.
Posiadasz podobną nieruchomość? Skorzystaj z bezpłatnej konsultacji – odpowiemy na pytania dotyczące ceny, procesu sprzedaży oraz możliwości poprawy atrakcyjności oferty.
Oferujemy również:
• Pośrednictwo w kupnie, sprzedaży oraz najmie nieruchomości.
• Pomoc w sprzedaży nieruchomości o skomplikowanej sytuacji prawnej.
• Rzetelne oceny wartości nieruchomości.
• Uzyskanie świadectwa energetycznego.
Nie zwlekaj, zadzwoń już teraz!
Edyta Bancerz
Doradca ds. Nieruchomości
tel. 885 851 158
[email protected]
Północ Nieruchomości
ul. Warszawska 15
21-500 Biała Podlaska
Szukasz domu z potencjałem, w spokojnej lokalizacji, ale z dobrym dojazdem do miasta?
Mam ciekawą propozycję!
Na sprzedaż dom w stanie deweloperskim o powierzchni użytkowej 104m², położony na działce 1230m², na przedmieściach Milanowa (powiat parczewski).
To wyjątkowa okazja dla osób, które szukają przestrzeni, komfortu i ciszy – bez rezygnacji z wygody dojazdu do miasta.
Rozkład pomieszczeń:
– 2 pokoje,
– duży, jasny salon z możliwością aranżacji strefy wypoczynkowej z miejscem na urządzenie tarasu
– przechodnia kuchnia,
– łazienka z WC,
– garaż w bryle budynku
- wiatrołap i przedpokój
- kotłownia
Przekształcony z budynku gospodarczego, starannie rozbudowany i dostosowany do funkcji mieszkalnych, oferuje komfort, przestrzeń i solidne wykonanie. Całość została przygotowana zgodnie z przepisami prawa budowlanego – nowy właściciel może skupić się na aranżacji wnętrz i wykończeniu przestrzeni zgodnie ze swoimi potrzebami.
Parametry nieruchomości:
* Powierzchnia użytkowa: 104m²
* Działka: 1230m²
* Garaż w bryle budynku
* Stan: deweloperski – urządzisz po swojemu!
* ogrzewanie podłogowe na całej powierzchni
Działka 1230 m² daje dużo swobody – miejsce na ogród, strefę relaksu czy ogródek warzywny. Choć działka jest stosunkowo wąska, została zagospodarowana w sposób funkcjonalny i komfortowy.
Lokalizacja:
Nieruchomość położona jest w Kolonii Milanów, w spokojnej i zielonej okolicy. W sąsiedztwie zabudowa jednorodzinna, pola i tereny otwarte. Do do centrum Milanowa i Parczewa – szybki i wygodny dojazd. To idealna propozycja dla osób ceniących ciszę i przestrzeń, a jednocześnie chcących pozostać w zasięgu miasta.
To bardzo konkurencyjna oferta w tej lokalizacji – nowy, rozbudowany dom z dużą działką w cenie mieszkania!
📞 Nie czekaj – zadzwoń i umów się na prezentację!
Bezpłatnie pomagamy w formalnościach związanych z uzyskaniem kredytu na zakup nieruchomości. Nasz doradca kredytowy bezpłatnie sprawdzi Twoją zdolność kredytową i przedstawi najlepsze oferty z ponad 10 banków.
Posiadasz podobną nieruchomość? Skorzystaj z bezpłatnej konsultacji – odpowiemy na pytania dotyczące ceny, procesu sprzedaży oraz możliwości poprawy atrakcyjności oferty.
Oferujemy również:
• Pośrednictwo w kupnie, sprzedaży oraz najmie nieruchomości.
• Pomoc w sprzedaży nieruchomości o skomplikowanej sytuacji prawnej.
• Rzetelne oceny wartości nieruchomości.
• Uzyskanie świadectwa energetycznego.
Nie zwlekaj, zadzwoń już teraz!
Edyta Bancerz
Doradca ds. Nieruchomości
tel. 885 851 158
[email protected]
Północ Nieruchomości
ul. Warszawska 15
21-500 Biała Podlaska
Kategoria
Reklama




















