
Dom 120m² z ogrodem – idealny dla rodziny!
699 000,00 zł
Opis
Szukasz wygodnego domu w samym sercu Radzynia Podlaskiego, gotowego do zamieszkania bez dodatkowych nakładów?
Ta nieruchomość to połączenie komfortu, przestrzeni i klimatycznego ogrodu – w doskonałej lokalizacji przy ul. Ostrowieckiej w Radzyniu Podlaskim!
Parametry nieruchomości:
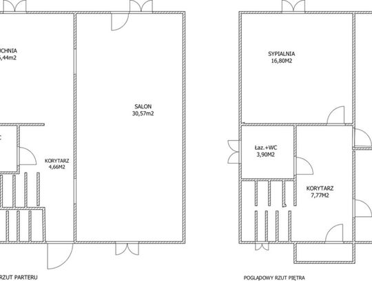
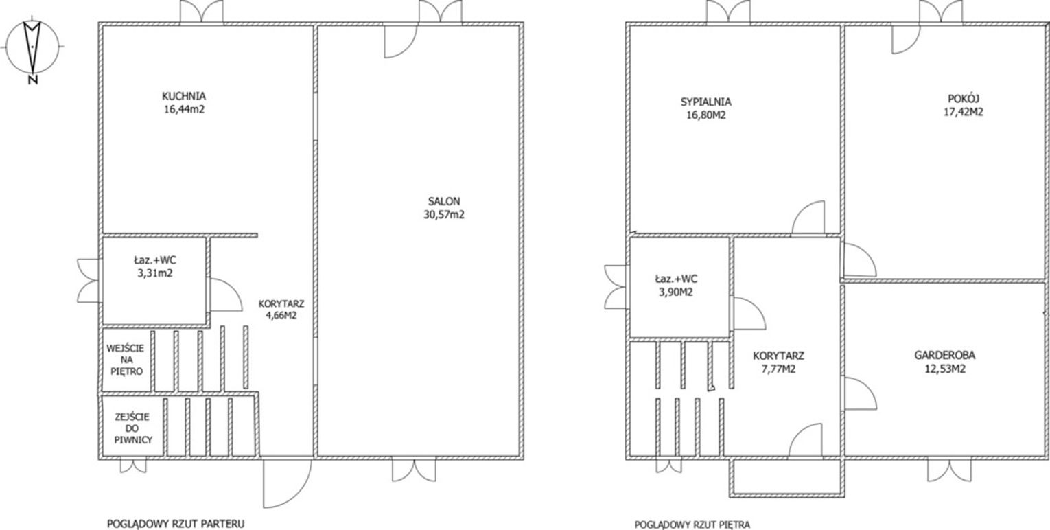
– Powierzchnia użytkowa: 120 m²
– Działka: 562 m², urządzona w stylu kameralności
– Budynek: dwukondygnacyjny, w pełni podpiwniczony
– Dojazd: uregulowany urzędowo – przypisany do posesji
Rozkład pomieszczeń:
Parter:
– Duży, jasny salon z wyjściem na taras i do ogrodu
– Przestronna, otwarta kuchnia z miejscem na jadalnię
– Łazienka
Piętro:
– 3 ustawne pokoje (w tym jeden pełniący funkcję dużej garderoby – z gotowym miejscem do przechowywania ubrań)
– Łazienka z prysznicem
- korytarz z wyjściem na mały balkon
Piwnica:
- Dodatkowa przestrzeń użytkowa
– może stać się domową siłownią
- Możliwość urządzenia domowej spiżarni lub winiarni
- podpiwniczony dom lepiej oddycha, piwnica stabilizuje temperaturę w budynku, co może obniżyć koszty ogrzewania i chłodzenia
- częściej doceniamy posiadanie bezpiecznego miejsca, które można wykorzystać jako magazyn zapasów czy awaryjne pomieszczenie
Standard wykończenia:
* Dom po generalnym remoncie – gotowy do zamieszkania - dostępny od stycznia 2026r!
* Sprzedawany z pełnym wyposażeniem – meble, sprzęty AGD i RTV (z wyjątkiem mebli w salonie)
Media i ogrzewanie:
Ogrzewanie olejowe oraz dodatkowo węglem. Możliwość założenia pompy ciepła.
Dodatkowo: zainstalowane solary – realna oszczędność na ciepłej wodzie
Na przestrzeni kilku miesięcy planowane jest przyłączenie posesji do PEC-u.
Ogród i otoczenie:
Działka starannie zagospodarowana, zapewniająca prywatność i komfort. Ogrodzona.
Na działce znajduje się murowany garaż wolnostojący z pomieszczeniem gospodarczym.
Intymna przestrzeń do relaksu, rodzinnych spotkań lub pracy zdalnej na świeżym powietrzu.
Lokalizacja:
– ul. Ostrowiecka – jedna z najchętniej wybieranych lokalizacji w Radzyniu Podlaskim
– Blisko sklepy, szkoły, urzędy, park miejski – wszystko w zasięgu krótkiego spaceru
– Bardzo dobra komunikacja i szybki dojazd do każdej części miasta
Nie czekaj – dom w tej lokalizacji i w takim standardzie to prawdziwa rzadkość na rynku!
Zadzwoń i umów się na prezentację.
Bezpłatnie pomagamy w formalnościach związanych z uzyskaniem kredytu na zakup nieruchomości. Nasz doradca kredytowy bezpłatnie sprawdzi Twoją zdolność kredytową i przedstawi najlepsze oferty z ponad 10 banków.
Posiadasz podobną nieruchomość? Skorzystaj z bezpłatnej konsultacji – odpowiemy na pytania dotyczące ceny, procesu sprzedaży oraz możliwości poprawy atrakcyjności oferty.
Oferujemy również:
• Pośrednictwo w kupnie, sprzedaży oraz najmie nieruchomości.
• Pomoc w sprzedaży nieruchomości o skomplikowanej sytuacji prawnej.
• Rzetelne oceny wartości nieruchomości.
• Uzyskanie świadectwa energetycznego.
Nie zwlekaj, zadzwoń już teraz!
Edyta Bancerz
Doradca ds. Nieruchomości
tel. 885 851 158
[email protected]
Północ Nieruchomości
ul. Warszawska 15
21-500 Biała Podlaska
Ta nieruchomość to połączenie komfortu, przestrzeni i klimatycznego ogrodu – w doskonałej lokalizacji przy ul. Ostrowieckiej w Radzyniu Podlaskim!
Parametry nieruchomości:
– Powierzchnia użytkowa: 120 m²
– Działka: 562 m², urządzona w stylu kameralności
– Budynek: dwukondygnacyjny, w pełni podpiwniczony
– Dojazd: uregulowany urzędowo – przypisany do posesji
Rozkład pomieszczeń:
Parter:
– Duży, jasny salon z wyjściem na taras i do ogrodu
– Przestronna, otwarta kuchnia z miejscem na jadalnię
– Łazienka
Piętro:
– 3 ustawne pokoje (w tym jeden pełniący funkcję dużej garderoby – z gotowym miejscem do przechowywania ubrań)
– Łazienka z prysznicem
- korytarz z wyjściem na mały balkon
Piwnica:
- Dodatkowa przestrzeń użytkowa
– może stać się domową siłownią
- Możliwość urządzenia domowej spiżarni lub winiarni
- podpiwniczony dom lepiej oddycha, piwnica stabilizuje temperaturę w budynku, co może obniżyć koszty ogrzewania i chłodzenia
- częściej doceniamy posiadanie bezpiecznego miejsca, które można wykorzystać jako magazyn zapasów czy awaryjne pomieszczenie
Standard wykończenia:
* Dom po generalnym remoncie – gotowy do zamieszkania - dostępny od stycznia 2026r!
* Sprzedawany z pełnym wyposażeniem – meble, sprzęty AGD i RTV (z wyjątkiem mebli w salonie)
Media i ogrzewanie:
Ogrzewanie olejowe oraz dodatkowo węglem. Możliwość założenia pompy ciepła.
Dodatkowo: zainstalowane solary – realna oszczędność na ciepłej wodzie
Na przestrzeni kilku miesięcy planowane jest przyłączenie posesji do PEC-u.
Ogród i otoczenie:
Działka starannie zagospodarowana, zapewniająca prywatność i komfort. Ogrodzona.
Na działce znajduje się murowany garaż wolnostojący z pomieszczeniem gospodarczym.
Intymna przestrzeń do relaksu, rodzinnych spotkań lub pracy zdalnej na świeżym powietrzu.
Lokalizacja:
– ul. Ostrowiecka – jedna z najchętniej wybieranych lokalizacji w Radzyniu Podlaskim
– Blisko sklepy, szkoły, urzędy, park miejski – wszystko w zasięgu krótkiego spaceru
– Bardzo dobra komunikacja i szybki dojazd do każdej części miasta
Nie czekaj – dom w tej lokalizacji i w takim standardzie to prawdziwa rzadkość na rynku!
Zadzwoń i umów się na prezentację.
Bezpłatnie pomagamy w formalnościach związanych z uzyskaniem kredytu na zakup nieruchomości. Nasz doradca kredytowy bezpłatnie sprawdzi Twoją zdolność kredytową i przedstawi najlepsze oferty z ponad 10 banków.
Posiadasz podobną nieruchomość? Skorzystaj z bezpłatnej konsultacji – odpowiemy na pytania dotyczące ceny, procesu sprzedaży oraz możliwości poprawy atrakcyjności oferty.
Oferujemy również:
• Pośrednictwo w kupnie, sprzedaży oraz najmie nieruchomości.
• Pomoc w sprzedaży nieruchomości o skomplikowanej sytuacji prawnej.
• Rzetelne oceny wartości nieruchomości.
• Uzyskanie świadectwa energetycznego.
Nie zwlekaj, zadzwoń już teraz!
Edyta Bancerz
Doradca ds. Nieruchomości
tel. 885 851 158
[email protected]
Północ Nieruchomości
ul. Warszawska 15
21-500 Biała Podlaska
Kategoria
Reklama



























