
Domy w stanie deweloperskim w Rakowiskach
595 000,00 zł
Opis
Przestronne domy w spokojnej okolicy w Rakowiskach.
Parametry domu
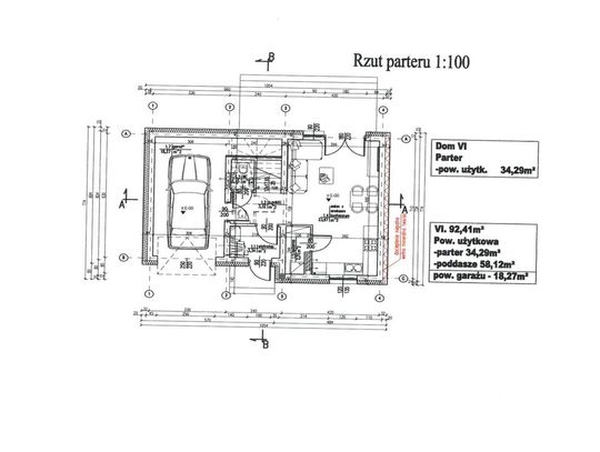
ROZKŁAD POMIESZCZEŃ:
PARTER
1. Salon z aneksem kuchennym 23,97m2
2. Spiżarnia 2,21 m2
3. Przedpokój 3,32m2
4. WC 1,45m2
5, Wiatrołap 3,34 m2
6. Garaż 18,27 m2
Suma powierzchni 52,56m2
PIĘTRO
1. Hol + schody 11,52 m2
2. Pokój 9,48 m2
3. Pokój 11,66 m2
4. Pokój 8,42 m2
5. Pokój 9,63 m2
6. Łazienka 7,41 m2
Suma powierzchni 58,12 m²
To idealna propozycja dla osób, które chcą mieszkać blisko miasta, ale cenią sobie ciszę, przestrzeń i codzienny kontakt z naturą.
Na ten moment dostępne są 3 nieruchomości usytuowane na tym osiedlu.
To świetna propozycja, jeśli marzysz o dużym, nowoczesnym domu, który wykończysz zgodnie z własnym pomysłem i stylem.
Ostatnie zdjęcia w ofercie przedstawiają wizualizację domu i otoczenia.
Bezpłatnie pomagamy w formalnościach związanych z uzyskaniem kredytu na zakup nieruchomości. Nasz doradca kredytowy bezpłatnie sprawdzi Twoją zdolność kredytową i przedstawi najlepsze oferty z ponad 10 banków.
Posiadasz podobną nieruchomość? Skorzystaj z bezpłatnej konsultacji – odpowiemy na pytania dotyczące ceny, procesu sprzedaży oraz możliwości poprawy atrakcyjności oferty
Oferujemy również:
• Pośrednictwo w kupnie, sprzedaży oraz najmie nieruchomości.
• Pomoc w sprzedaży nieruchomości o skomplikowanej sytuacji prawnej.
• Rzetelne oceny wartości nieruchomości.
• Uzyskanie świadectwa energetycznego.
Nie zwlekaj, zadzwoń już teraz!
Nie zwlekaj, zadzwoń już teraz!
Klaudia Mikiciuk - Szpera
Doradca ds. nieruchomości
tel. 885 851 172
e-mail: [email protected]
Północ Nieruchomości oddział Biała Podlaska
Parametry domu
- Powierzchnia użytkowa: 110,68 m2
- Garaż w bryle budynku: 18,27 m2 – miejsce na jedno auto
- Ponadstandardowa wysokość pomieszczeń – daje poczucie przestrzeni
- Okna plastikowe
ROZKŁAD POMIESZCZEŃ:
PARTER
1. Salon z aneksem kuchennym 23,97m2
2. Spiżarnia 2,21 m2
3. Przedpokój 3,32m2
4. WC 1,45m2
5, Wiatrołap 3,34 m2
6. Garaż 18,27 m2
Suma powierzchni 52,56m2
PIĘTRO
1. Hol + schody 11,52 m2
2. Pokój 9,48 m2
3. Pokój 11,66 m2
4. Pokój 8,42 m2
5. Pokój 9,63 m2
6. Łazienka 7,41 m2
Suma powierzchni 58,12 m²
- Częściowo ogrodzona
- Energia elektryczna na działce
- W pasie drogowym: linia telekomunikacyjna
To idealna propozycja dla osób, które chcą mieszkać blisko miasta, ale cenią sobie ciszę, przestrzeń i codzienny kontakt z naturą.
- szybki dojazd do centrum Białej Podlaskiej (ok. 8 minut samochodem)
- dobry dojazd do drogi krajowej nr 2
Na ten moment dostępne są 3 nieruchomości usytuowane na tym osiedlu.
To świetna propozycja, jeśli marzysz o dużym, nowoczesnym domu, który wykończysz zgodnie z własnym pomysłem i stylem.
Ostatnie zdjęcia w ofercie przedstawiają wizualizację domu i otoczenia.
Bezpłatnie pomagamy w formalnościach związanych z uzyskaniem kredytu na zakup nieruchomości. Nasz doradca kredytowy bezpłatnie sprawdzi Twoją zdolność kredytową i przedstawi najlepsze oferty z ponad 10 banków.
Posiadasz podobną nieruchomość? Skorzystaj z bezpłatnej konsultacji – odpowiemy na pytania dotyczące ceny, procesu sprzedaży oraz możliwości poprawy atrakcyjności oferty
Oferujemy również:
• Pośrednictwo w kupnie, sprzedaży oraz najmie nieruchomości.
• Pomoc w sprzedaży nieruchomości o skomplikowanej sytuacji prawnej.
• Rzetelne oceny wartości nieruchomości.
• Uzyskanie świadectwa energetycznego.
Nie zwlekaj, zadzwoń już teraz!
Nie zwlekaj, zadzwoń już teraz!
Klaudia Mikiciuk - Szpera
Doradca ds. nieruchomości
tel. 885 851 172
e-mail: [email protected]
Północ Nieruchomości oddział Biała Podlaska
Kategoria
Reklama













